Este site utiliza cookies para permitir a mudança de língua e o armazenamento dos seus imóveis favoritos. Ao utilizar este site, concorda que o mesmo utilize cookies.

Apartamento T1 NOVO - Centro de Matosinhos

249.500€



Referência

NET0516

Natureza

Venda

Tipo de Imóvel

Apartamento

Tipologia

T1

Estado

Em Construção

Certificado energético

A+

Ano

2027


Distrito

Porto

Concelho

Matosinhos

Freguesia

Matosinhos e Leça da Palmeira

Código Postal

4450


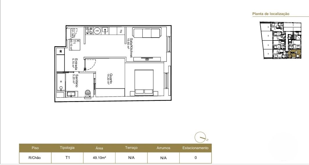
Área Útil

49.1 m2

Área Bruta

58 m2

Área de Terreno

0 m2

Partilhar



Contactar Imobiliária

*Preenchimento obrigatório
Ao clicar em 'Enviar', declara que aceita a nossa Política de Privacidade.
Empreedimento em Construção - Centro de Matosinhos

Tipologias:
- T0 desde 222.500,00 euros;
- T1 desde 249.500,00 euros;
- T2 desde 477.500,00 euros.

Inserido numa zona central da cidade de matosinhos, o edifício possui uma localização privilegiada. Encontra-se a cerca de 800 metros da Câmara de Matosinhos, biblioteca municipal, entre outros serviços, como centro de saúde, finanças, escolas, bombeiros, etc.
De salientar ainda a proximidade às principais vias de acesso como A28, A4, A1 e até mesmo infraestruturas como o aeroporto Sá Carneiro e o Porto de Leixões.
A implantação do edifício assenta na morfologia do aglomerado habitacional envolvente, bem como a sua distribuição interior proporcionam o desenvolvimento de espaços habitacionais bastante apraziveis, quer no inverno, quer no verão, dado pela ótima exposição solar.
Trata-se de um empreedimento constituido por 3 pisos acima do solo, e um piso abaixo do mesmo, destinado ao aparcamento automovel e arrumos.
As frações apresentam áreas brutas que variam desde os 58m2 aos 156m2, com varandas e terraços, uma realidade oposta no que diz respeito à dimensão dos espaços desenvolvidos actualmente no mercado imobiliário. Esta caracteristica deve-se ao fato de se acreditar que os espaços destinados à habitação permanente devem corresponder às necessidades de uma vivência do quotidiano.
Do ponto de vista arquitetonico, este edificio apresentará um design minimalista apoiado em soluções construtivas e acabamentos requintados, tendo tudo para lhe proporcionar uma vida melhor!



Geral
GeraisRés do chão:Sim
GeraisNº de Casas de Banho:1
CaixilhariaVidro Duplo:Sim
VistasCidade:Sim
Exposição SolarNascente:Sim
Ar CondicionadoPré-instalado:Sim
CozinhaPlaca:Sim
CozinhaForno:Sim
CozinhaMicro-ondas:Sim
CozinhaFrigorífico:Sim
CozinhaMáquina de lavar loiça:Sim
ClimatizaçãoBomba de calor:Sim
Edificio
GeraisNº de Frentes :1
ElevadorNº de Elevadores:1
Domótica
GeraisEstores elétricos:Sim

Este imóvel não tem áreas definidas.

Imóveis
Semelhantes

Apartamento
Venda
Centro de Matosinhos

477.500€

Apartamento T2 NOVO - Centro de Matosinhos

477.500€

Porto / Matosinhos / Matosinhos e Leça da Palmeira


Ref: NET0518

Ref: NET0518

102.5 m2

3

Sim

Apartamento
Venda
Próximo da Praia

249.000€

Fantástico Apartamento T2 Duplex Próximo da P...

249.000€

Porto / Matosinhos / Matosinhos e Leça da Palmeira


Ref: NET0524

Ref: NET0524

120 m2

2

1

Apartamento
Venda
Centro de Matosinhos

222.500€

Apartamento T0 NOVO - Centro de Matosinhos

222.500€

Porto / Matosinhos / Matosinhos e Leça da Palmeira


Ref: NET0517

Ref: NET0517

44.1 m2

1